Производство и строительство домов из клееного бруса «под ключ».
С-Петербург, Лен.Область, 
респ.Карелия

10:00 - 21:00  Сб, Вс - вых.
Производство и строительство домов из клееного бруса «под ключ».
Артикул:                            ДД-35
Санузлы:                            3
Спальни:                            3
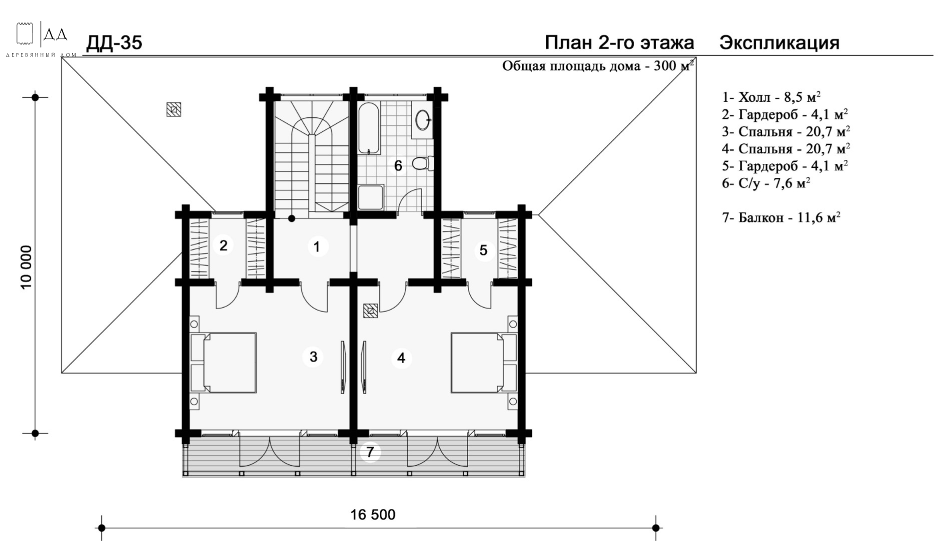
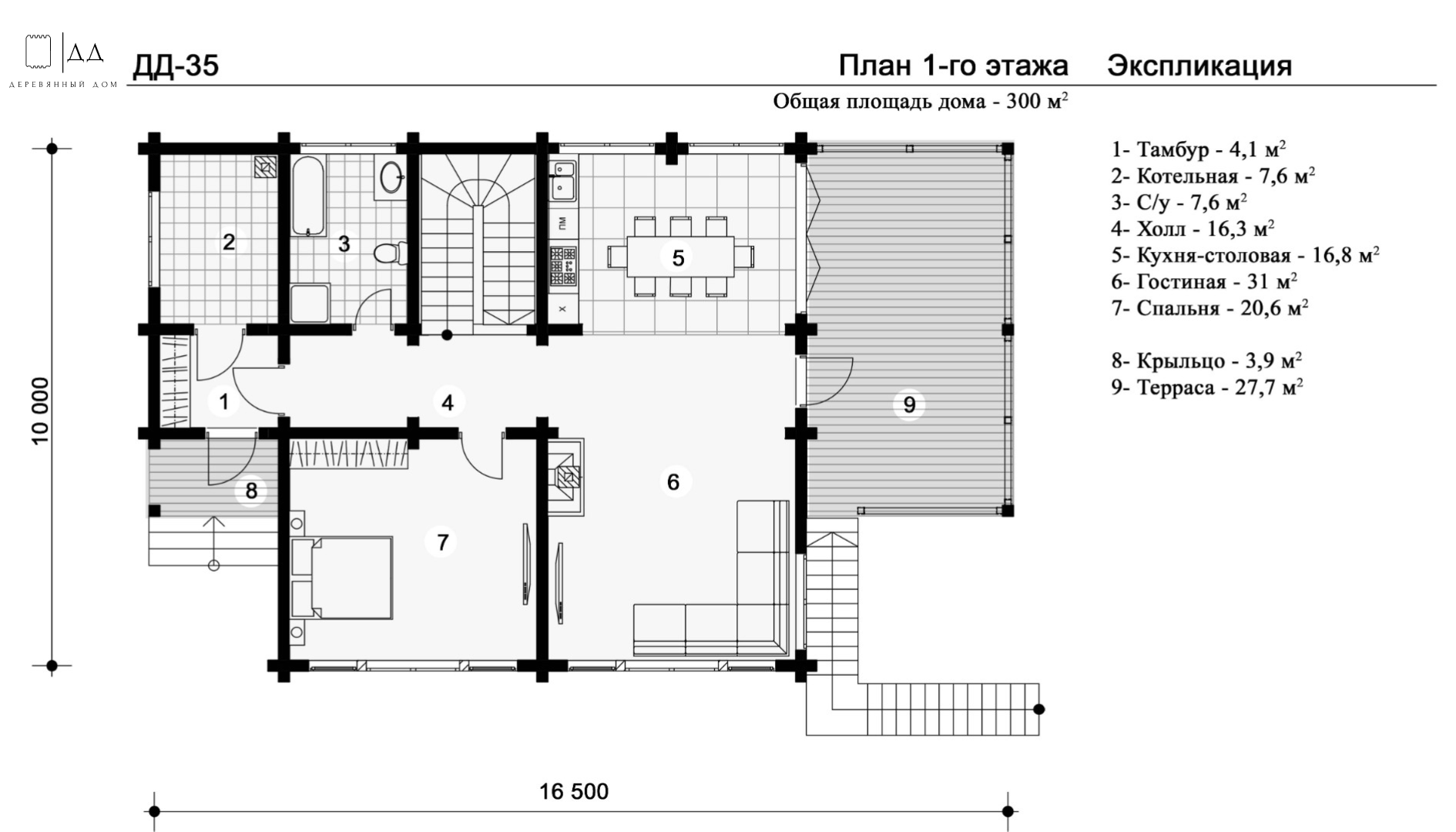
Площадь:                           300 м2
Конструкция:                  с террасой
Этажи:                                  3
Характеристики
Архитектурный контроль на всех этапах
От эскиза до заселения вас сопровождает архитектор. Он же курирует адаптацию проекта, подбор материалов и сдачу результата. У вас — один собеседник, одна точка ответственности.
Кровля
Выбираем покрытие исходя из наклона, деревьев и эстетики фасада. В основе — утеплённая конструкция (200 мм), мягкая кровля премиальных брендов (США, Финляндия), снегозадержание и металл-система водоотвода. Всё работает на срок службы и акустический комфорт.
Стеновой комплект
Оптимальная толщина бруса для круглогодичного проживания — от 200 до 242 мм. Такая стена держит тепло, дышит, выдерживает перепады климата и даёт ощущение монолитной тишины внутри.
Фундамент
Каждый участок — с разным характером. Мы начинаем с анализа геологии и топосъёмки, чтобы точно подобрать конструкцию. Используем три проверенных типа: ленточный, плитный и свайный с мелкозаглубленным ростверком — в зависимости от задачи, грунта и будущей нагрузки.
Вы открываете дверь — и понимаете: здесь нет ни одной лишней линии. Пространство спокойно. Всё на своих местах.

Снимаете куртку — аккуратно встроенный шкаф принимает её, свет мягко включается в нужной зоне. Проходите в гостиную, где горит камин. Простор, воздух, ровный ритм потолков. В этом доме легко дышать и думать.

Кухня соединена с зоной отдыха, но не конфликтует с ней. Кабинет — отдельно. Он не отвлекает, но ждёт, когда нужно сосредоточиться. Спальни уединены. Кабельные трассы, вентиляция, свет — вы их не замечаете. Но они работают. Каждый метр логичен. Каждое решение — на своём месте. Это не архитектура, которая демонстрирует. Это дом, который даёт порядок.

Характеристики

Планировки

о проекте

Золотая Нить

Не знаете, с чего начать? 
Ответьте на 5 вопросов - 
и   получите визуализацию   вашего дома

Не знаете, с чего начать? 
Ответьте на 5 вопросов - 
и   получите визуализацию вашего дома

Мы строим дома и создаём пространство для жизни — индивидуальной, приватной, глубоко продуманной.

Уже 20 лет мы проектируем и возводим резиденции, усадьбы и домовладения премиального уровня из клеёного бруса. География нашей работы — Санкт-Петербург, Ленобласть, Москва и область, Карелия и Мурманская область и не только. За эти годы количество сданных домовладений превышает 150.

Нас выбирают те, для кого важна не только архитектура, но и то, что стоит за ней: комфорт, тишина, стиль жизни. Наши клиенты — собственники и топ-менеджеры ведущих компаний, представители государственной элиты. Для них особенно ценны конфиденциальность, безупречное качество и предельная надёжность.

Мы чувствуем образ жизни каждого клиента — и создаём дом, который ему соответствует. У нас не только типовые решения, но и индивидуальный подход, огромный выбор материалов и гибкость в реализации. Каждый проект — это отражение личности владельца.

Если вы ищете партнёров, которым можно доверить дом — мы здесь.
Валентин, сооснователь Tule Talo

ОТ ПЕРВОГО ЛИЦА

Название нашей компании «Tule Talo» в переводе на русский означает  «Возвращаться домой», именно этой концепции мы придерживаемся при строительстве наших домов, в ней отражена наша главная цель: создание пространства, наполненного теплом, любовью и той самой атмосферой уюта, куда хочется возвращаться снова и снова.

Мы рекомендуем проекты "под ключ", избавляя вас от всех забот, предлагая для вас полный цикл услуг – от разработки индивидуального архитектурного решения, учитывающего все ваши пожелания, до строительства, отделки и благоустройства. Наши дизайнеры создают интерьер, где каждая деталь гармонирует с вашим внутренним миром, где учтены ваши привычки и потребности. А опытные мастера воплощают в жизнь самые смелые идеи, используя современные технологии и только  качественные материалы.  


«Tule Talo» - это не просто строительная компания, это команда единомышленников, которые любят свою работу и вкладывают душу в каждый проект. Мы ценим ваше время и делаем все возможное, чтобы процесс строительства был максимально комфортным и прозрачным для вас. Позвольте нам создать дом, который станет вашим личным местом силы, где вы сможете отдохнуть от суеты внешнего мира, насладиться тишиной и уютом, и почувствовать себя по-настоящему счастливыми.


В "Tule Talo" мы понимаем, что дом – это не просто стены и крыша, это место, где создаются воспоминания, где собирается семья, где рождается счастье. Поэтому мы уделяем особое внимание деталям, создавая интерьеры, которые отражают ваш уникальный стиль и соответствуют вашим потребностям. 


Мы гарантируем высокое качество работ и соблюдение всех сроков. С нами строительство дома вашей мечты станет приятным и легким процессом. Мы построим для вас дом, в который вам всегда захочется вернуться.
Денис, сооснователь Tule Talo 
3
2
1
Поэтажный план, визуализация
Планировка с учётом особенностей участка: уклона, сторон света, соседних участков и строений
Архитектор, который слушает и предлагает решения, индивидуально для вас
Из этого рождается планировка: не просто стены, а сценарий жизни. У вас будет:
Мы не продаём шаблон — мы проектируем дом под образ жизни.Встречаемся, изучаем участок, говорим о вашем ритме, привычках, желаниях.

Проект, который начинается с вас

Технологии и контроль. Используем надёжные материалы премиум-класса: утеплители, стеклопакеты, фурнитуру — с гарантией. И при этом каждый узел проверяем вручную, чтобы всё работало безупречно.
— Собственное столярное производство. Всё, что вы видите и трогаете в доме — из одного дерева, в одном ритме. Фасады, кухни, лестницы, двери, гардеробные — спроектированы и сделаны в комплексе.
— Всё просчитано на старте. Конструкции, инженерия, утепление, вентиляция и комплектация — заложены в проекте заранее. Поэтому на стройке нет «вдруг», «не учли» и «надо докупить».
Сборка на станках ЧПУ. Каждая деталь — с точностью до 0,1 мм. Без подгонки на месте. Быстрый и чистый монтаж, никаких щелей, замазок и "доделаем потом".
Клеёный брус камерной сушки из северной древесины. Натуральный, экологичный материал — без клеёв с формальдегидом. Не трескается, не коробится, не требует перекрасов. Сохраняет геометрию и эстетику на десятилетия.

строим дома, которые служат десятилетиями — без сюрпризов

строим дома, которые служат десятилетиями 
— без сюрпризов

"Я не люблю громкие интерьеры. Хотела «дышащий» дом.
Ребята попали в настроение. В спальне — свет, как я хотела.
В кухне — воздух. Мы не следили за процессом. Просто приехали — и всё готово. Это редкость. Спасибо."
"Выбор не делал сам — отправил помощников.
Мне принесли сравнительную таблицу. Выбрали эту компанию за точность. Архитектура без навязывания, документы — по регламенту, стройка — без шума. Я привык к порядку. Здесь — он есть. По итогу — дом, в котором хочется молчать. Что ещё нужно."
Наталья Викторовна
Лен.Область, Карелия
Московская обл.
Андрей Павлович

Отзывы наших клиентов

Часто задаваемые вопросы