Артикул: ДД-02
Санузлы: 5
Спальни: 5
Площадь: 464,6 м2
Конструкция: с террасой
Этажи: 2
Характеристики
Архитектурный контроль на всех этапах
От эскиза до заселения вас сопровождает архитектор. Он же курирует адаптацию проекта, подбор материалов и сдачу результата. У вас — один собеседник, одна точка ответственности.
От эскиза до заселения вас сопровождает архитектор. Он же курирует адаптацию проекта, подбор материалов и сдачу результата. У вас — один собеседник, одна точка ответственности.
Кровля
Выбираем покрытие исходя из наклона, деревьев и эстетики фасада. В основе — утеплённая конструкция (200 мм), мягкая кровля премиальных брендов (США, Финляндия), снегозадержание и металл-система водоотвода. Всё работает на срок службы и акустический комфорт.
Выбираем покрытие исходя из наклона, деревьев и эстетики фасада. В основе — утеплённая конструкция (200 мм), мягкая кровля премиальных брендов (США, Финляндия), снегозадержание и металл-система водоотвода. Всё работает на срок службы и акустический комфорт.
Стеновой комплект
Оптимальная толщина бруса для круглогодичного проживания — от 200 до 242 мм. Такая стена держит тепло, дышит, выдерживает перепады климата и даёт ощущение монолитной тишины внутри.
Оптимальная толщина бруса для круглогодичного проживания — от 200 до 242 мм. Такая стена держит тепло, дышит, выдерживает перепады климата и даёт ощущение монолитной тишины внутри.
Фундамент
Каждый участок — с разным характером. Мы начинаем с анализа геологии и топосъёмки, чтобы точно подобрать конструкцию. Используем три проверенных типа: ленточный, плитный и свайный с мелкозаглубленным ростверком — в зависимости от задачи, грунта и будущей нагрузки.
Каждый участок — с разным характером. Мы начинаем с анализа геологии и топосъёмки, чтобы точно подобрать конструкцию. Используем три проверенных типа: ленточный, плитный и свайный с мелкозаглубленным ростверком — в зависимости от задачи, грунта и будущей нагрузки.
Утро в этом доме начинается с запаха свежего хлеба, лёгких шагов по тёплому полу и света, который заливает центральную гостиную. Дети спускаются с мансарды — у каждого своя комната, свои книги, своё настроение. Вы завариваете чай, открываете двери на террасу — сад уже живёт своим ритмом.
Этот дом не заставляет всех жить одинаково. Он подстраивается под ритм семьи: уединение там, где нужно. Общение — когда хочется. Просторная кухня с островом и гостиная с выходом в сад — точка притяжения. А дальше — спальни, мастер-блок, вторая зона наверху для детей, гостей или хобби.
Здесь не нужно подстраивать жизнь под архитектуру. Всё уже сделано так, чтобы жить стало легче.
Этот дом не заставляет всех жить одинаково. Он подстраивается под ритм семьи: уединение там, где нужно. Общение — когда хочется. Просторная кухня с островом и гостиная с выходом в сад — точка притяжения. А дальше — спальни, мастер-блок, вторая зона наверху для детей, гостей или хобби.
Здесь не нужно подстраивать жизнь под архитектуру. Всё уже сделано так, чтобы жить стало легче.
Характеристики
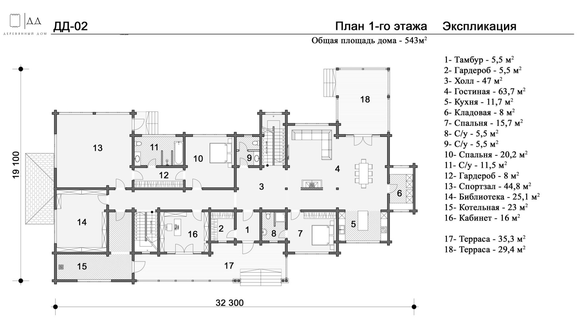
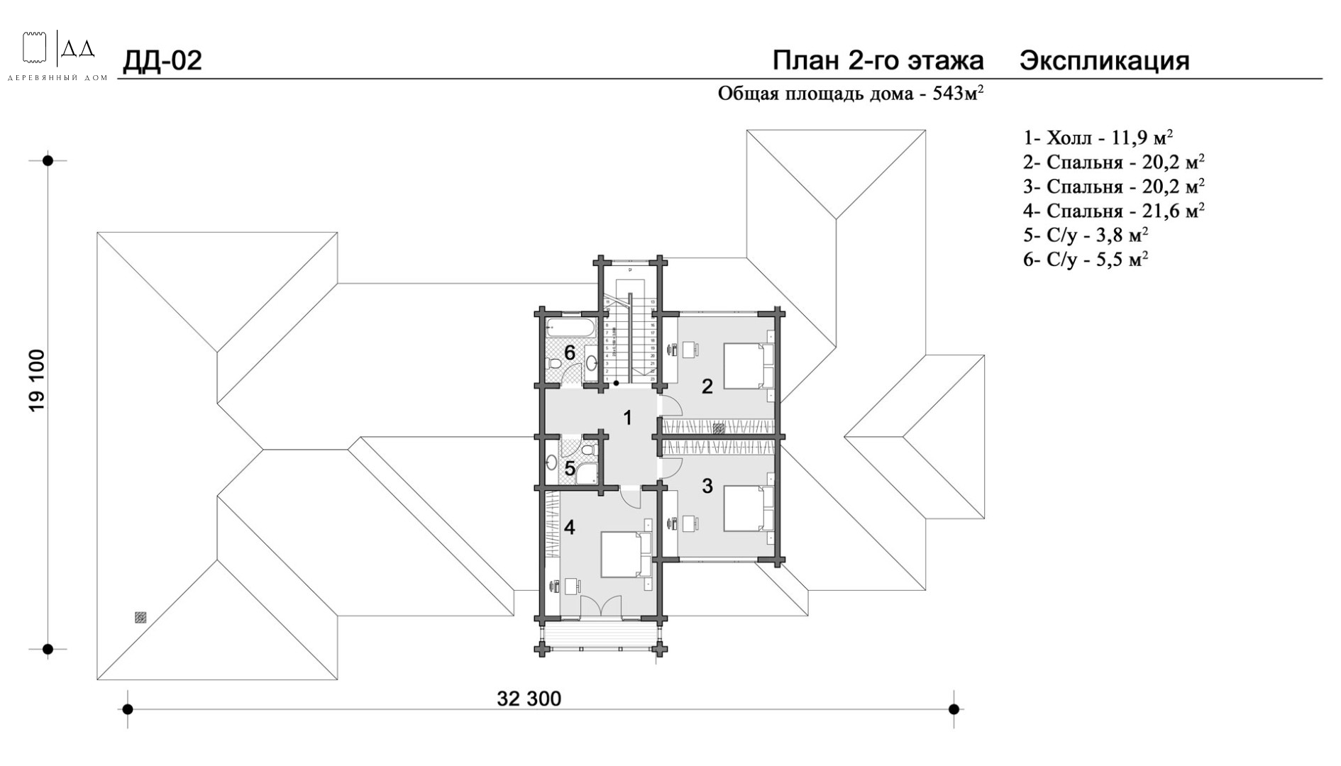
Планировки
о проекте
Семейный ритм
Конфиденциальность и отсутствие навязчивых звонков гарантируем.
3
2
1
Поэтажный план, визуализация
Планировка с учётом особенностей участка: уклона, сторон света, соседних участков и строений
Архитектор, который слушает и предлагает решения, индивидуально для вас
Из этого рождается планировка: не просто стены, а сценарий жизни. У вас будет:
Мы не продаём шаблон — мы проектируем дом под образ жизни.Встречаемся, изучаем участок, говорим о вашем ритме, привычках, желаниях.