Артикул: ДД-40
Санузлы: 6
Спальни: 5
Площадь: 425 м2
Конструкция: с террасой
Этажи: 2
Характеристики
Архитектурный контроль на всех этапах
От эскиза до заселения вас сопровождает архитектор. Он же курирует адаптацию проекта, подбор материалов и сдачу результата. У вас — один собеседник, одна точка ответственности.
От эскиза до заселения вас сопровождает архитектор. Он же курирует адаптацию проекта, подбор материалов и сдачу результата. У вас — один собеседник, одна точка ответственности.
Кровля
Выбираем покрытие исходя из наклона, деревьев и эстетики фасада. В основе — утеплённая конструкция (200 мм), мягкая кровля премиальных брендов (США, Финляндия), снегозадержание и металл-система водоотвода. Всё работает на срок службы и акустический комфорт.
Выбираем покрытие исходя из наклона, деревьев и эстетики фасада. В основе — утеплённая конструкция (200 мм), мягкая кровля премиальных брендов (США, Финляндия), снегозадержание и металл-система водоотвода. Всё работает на срок службы и акустический комфорт.
Стеновой комплект
Оптимальная толщина бруса для круглогодичного проживания — от 200 до 242 мм. Такая стена держит тепло, дышит, выдерживает перепады климата и даёт ощущение монолитной тишины внутри.
Оптимальная толщина бруса для круглогодичного проживания — от 200 до 242 мм. Такая стена держит тепло, дышит, выдерживает перепады климата и даёт ощущение монолитной тишины внутри.
Фундамент
Каждый участок — с разным характером. Мы начинаем с анализа геологии и топосъёмки, чтобы точно подобрать конструкцию. Используем три проверенных типа: ленточный, плитный и свайный с мелкозаглубленным ростверком — в зависимости от задачи, грунта и будущей нагрузки.
Каждый участок — с разным характером. Мы начинаем с анализа геологии и топосъёмки, чтобы точно подобрать конструкцию. Используем три проверенных типа: ленточный, плитный и свайный с мелкозаглубленным ростверком — в зависимости от задачи, грунта и будущей нагрузки.
Утром вы выходите на террасу из своей спальни — лес шепчет, тишина вокруг. В другом конце дома дети уже завтракают. Здесь — не мешают, а живут рядом. Дом разделён так, чтобы каждый жил в своём ритме — и при этом чувствовал семью.
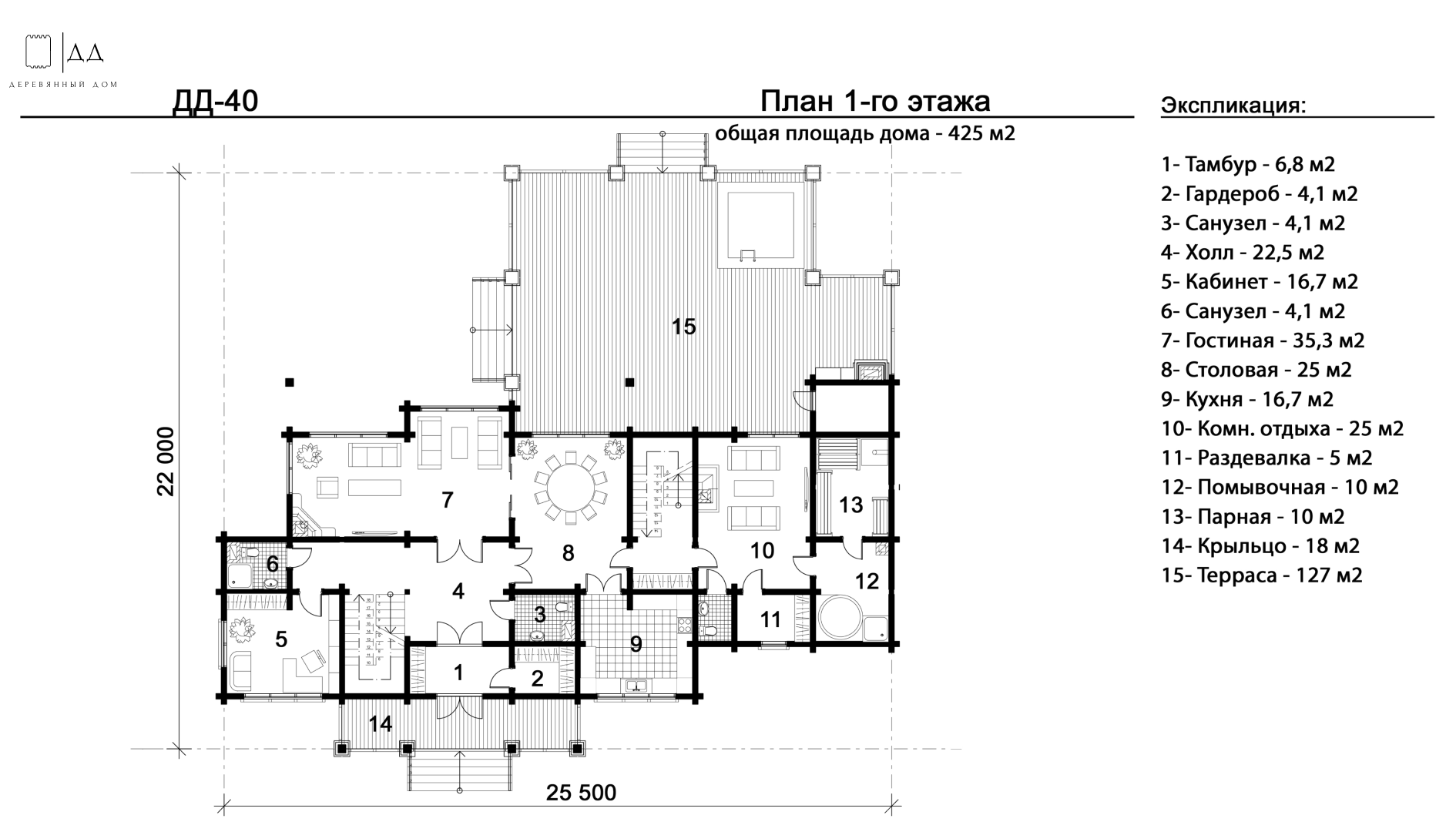
Планировка собрана из четырёх жилых блоков: у каждого — свой вход, своя логика. Хозяйский блок, блок жены, детские и гостевая. Всё соединяется в центре — в большой светлой гостиной. Здесь вы собираетесь вечером. Или не собираетесь — и это тоже комфортно.
Это архитектура, которая понимает разность характеров. Дом для семьи, где каждый важен — и при этом не теряется себя.
Планировка собрана из четырёх жилых блоков: у каждого — свой вход, своя логика. Хозяйский блок, блок жены, детские и гостевая. Всё соединяется в центре — в большой светлой гостиной. Здесь вы собираетесь вечером. Или не собираетесь — и это тоже комфортно.
Это архитектура, которая понимает разность характеров. Дом для семьи, где каждый важен — и при этом не теряется себя.
Характеристики
Планировки
о проекте
Четыре Сезона
Конфиденциальность и отсутствие навязчивых звонков гарантируем.
3
2
1
Поэтажный план, визуализация
Планировка с учётом особенностей участка: уклона, сторон света, соседних участков и строений
Архитектор, который слушает и предлагает решения, индивидуально для вас
Из этого рождается планировка: не просто стены, а сценарий жизни. У вас будет:
Мы не продаём шаблон — мы проектируем дом под образ жизни.Встречаемся, изучаем участок, говорим о вашем ритме, привычках, желаниях.